Продается квартира
4 500 000
| Стоимость | 4 500 000 |
|---|---|
| Возможное назначение | Салон красоты |
| Тип здания | Жилой дом |
| Тип парковки | На улице |
| Вход cian (avito) | Отдельный с улицы |
| Тип сделки авито коммерческая | Продажа |
| Ремонт | Хороший |
| Санузел | Раздельный |
| Планировка cian | Смешанная |
| Планировка avito | Кабинетная |
| Отделка помещения коммерческая | Офисная |
| Право собственности | Посредник |
| Способ связи avito | По телефону и в сообщениях |
| Состояние cian | Типовой ремонт |
| Ремонт коммерческая | хороший |
| Тип отопления cian | центральное угольное |
| Статус готовности | В эксплуатации |
| Удаленность от дороги (авито) | Первая линия |
| Электричество | Есть |
| Тип здания (Avito) | Жилой дом |
| Тип коммерческой | Помещение свободного назначения |
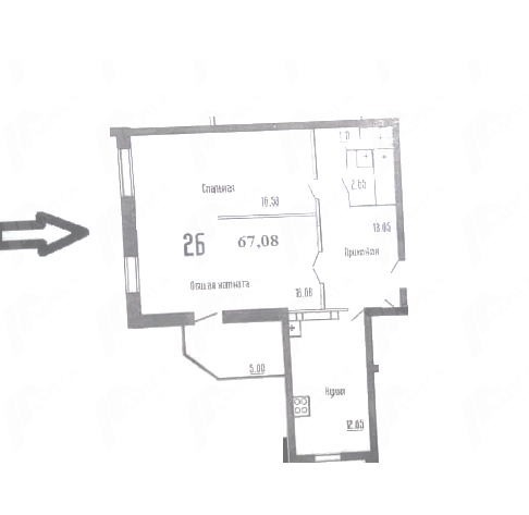
| Площадь, кв.м. | 64.7 |
| Этаж | 1 |
| Этажность | 9 |
| Населенный пункт | Астрахань |
|---|---|
| Улица | улица Энергетическая |
🏢 Продается уютная квартира в развитом районе города!
Адрес:ул. Энергетическая, 19
Площадь: 64.7кв.м
Количество комнат: 2
Статус помещения : ЖИЛОЕ
Описание:
Продается светлая и уютная квартира, расположенная в одном из самых удобных районов города. Квартира находится на 1 этаже, что обеспечивает удобство для проживания семьи с детьми. Комнаты изолированы. Просторная кухня. Разденьный санузел. Две сплитсистемы. Хороший ремонт.
Преимущества квартиры:
Помещение идеально подходит под парикмахерскую, салон красоты, косметологию или офис. Статус помещения, жилое. Есть отдельный вход, можно демонтировать.
Инфраструктура: В шаговой доступности школы, детские сады, магазины и остановки общественного транспорта.
Дополнительная информация:
Квартира юридически чистая, без обременений, один взрослый собственник. Возможна продажа по ипотеке и другим формам расчета.
Не упустите шанс стать владельцем этой замечательной квартиры! Реальному покупателю торг!
Звоните прямо сейчас для просмотра!
























